PROJETS
MISSIONS
TRANSITION+
A PROPOS
CONTACT
PROJETS
TRANSITION+
MISSIONS
A PROPOS
CONTACT
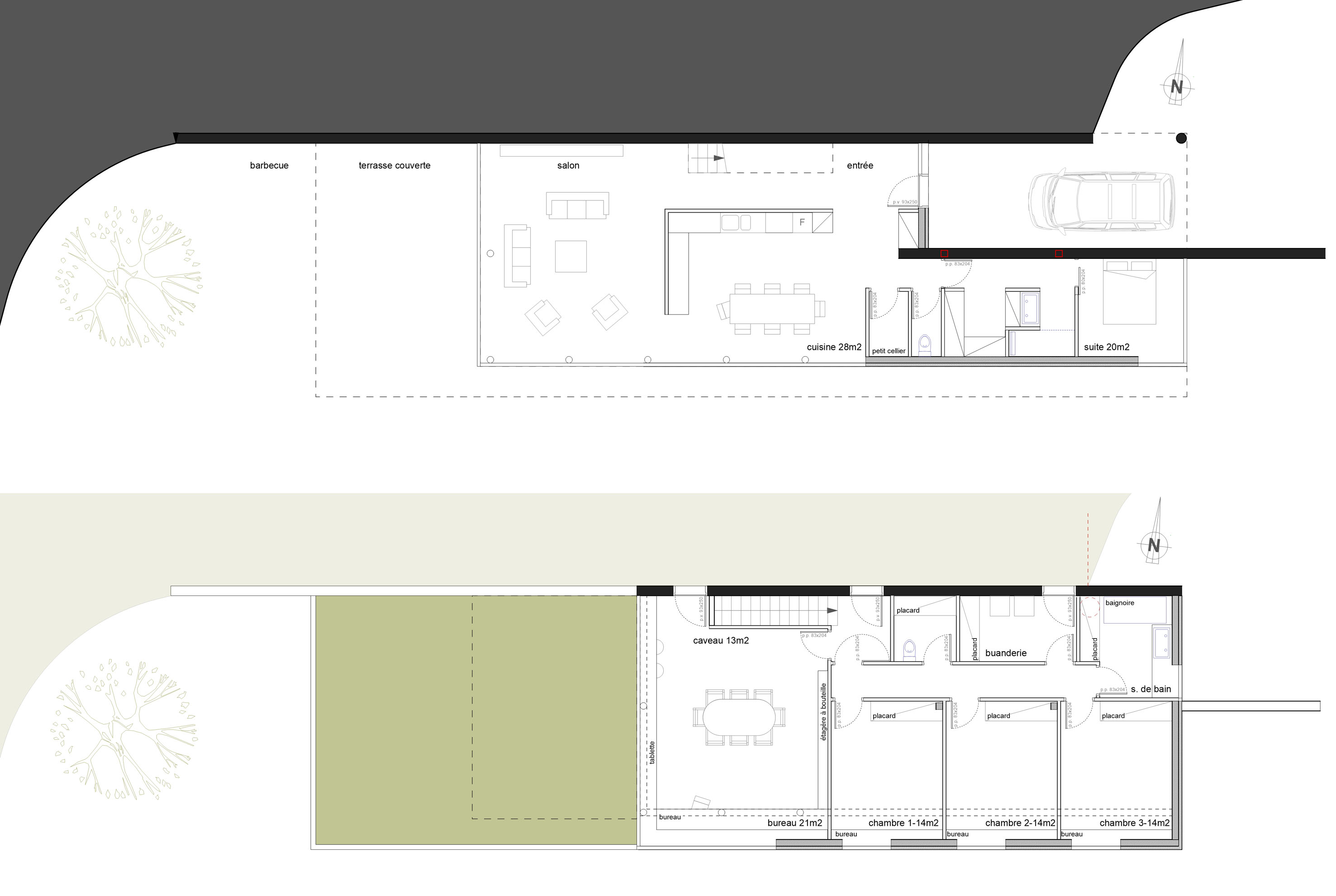
coupe
RDC
R+1
Une maison dans les vignes avec son chai de dégustation et sa terrasse contemplant le domaine